CAPE COD renovation.
WORTHINGTON, OHIO
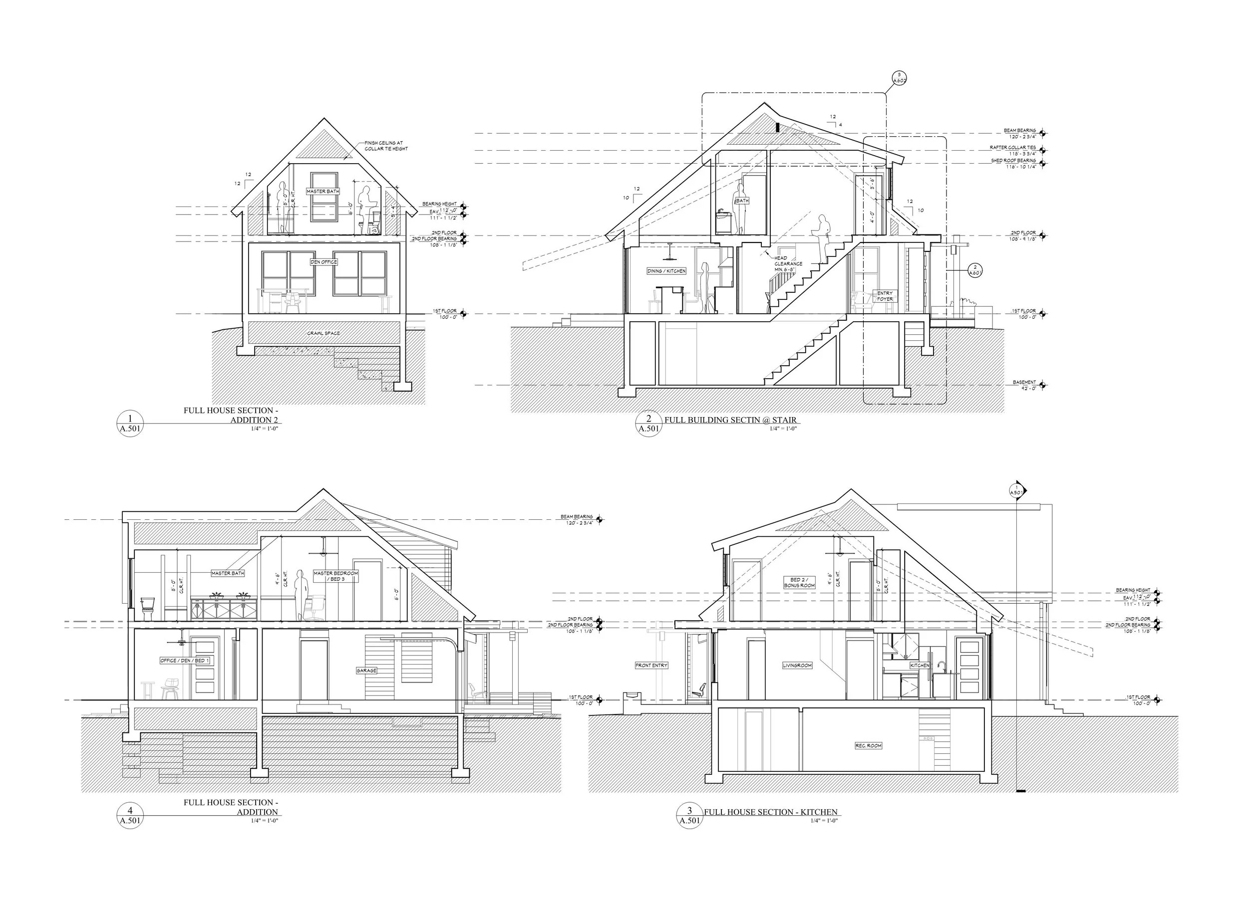
On a small sub-urban site, this Sears kit-home included tight compartmentalized spaces which were opened and optimized to afford borrowed views through the house and across entertainment spaces. Taking advantage of necessary roof reinforcing, the second floor roof framing was re-configured to achieve a 2nd floor suite and embrace a side-yard addition while preserving a private rear-yard.

